
Appartamento a Roma
- PROGETTO: Architetto Mario Sacco (ArchiRADAR)
- PARTNER: Studio Structura Srl
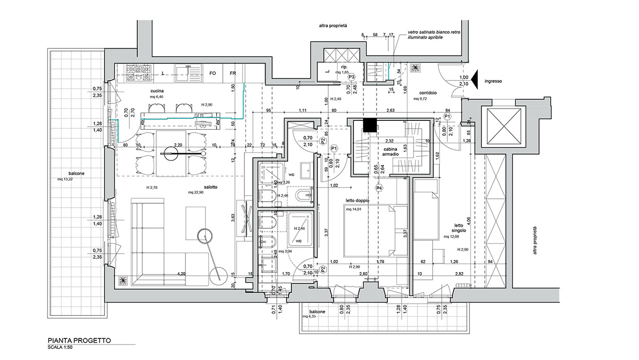
Progetto realizzato con il supporto di un modello virtuale realizzato con metodologia BIM.
Il modello è stato utilizzato per la redazione di tutti gli elaborati, per il calcolo delle quantità, per la verifica dei nodi complessi, per la simulazione fotorealistica e per il supporto in cantiere. Il modello virtuale è stato adottato sia per la parte edilizia che per tutti gli arredi su misura.








